FOP03-1102
Description:
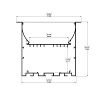
LED Suspended Profile & led Surface profile
•Made of anodizing aluminum;
•Aluminum: Alu6063-T5;
•Cover material: pc
•PC Cover option: opal diffuser,clear,semi-clear(Frosted cover),milky cover
•Available lengths:0.5m-4m;
•End cap,Mounting clips available;
•For flexibe or Rigid led strips up to 13mm wide;
•Suit for Office,furniture,shop stores ,exhibition boot lighting application



